So I realized I talked a lot about what we have to do to the basement, but not a lot about what it will be.
The main words to describe this space are cozy, comfy and casual.

Not our basement. Inspiration picture from Sarah’s House Season 1
We’re starting with a pretty good space. We have great ceiling height, large rooms and really good bones. You’ve already seen a sneak peak of the room I’ve dubbed the long room and heard about some of our early demo work. Here are the other rooms that make up our basement.

The main room. Picture a large, comfy sectional couch where the wood stove is and a big TV on the wall opposite the staircase.

The other side of the main room in the basement. Not sure what the deal is with all of the cabinetry and the workstations. This has all been removed, but some of the cabinets will be reused in Matt’s office. Picture a ping pong table and games table in this space.

Another view of the basement before. The laundry room is to the left and Matt’s soon-to-be office is through the doorway in the centre. The half wall has already been demolished and a new doorway to the office has been cut behind it.
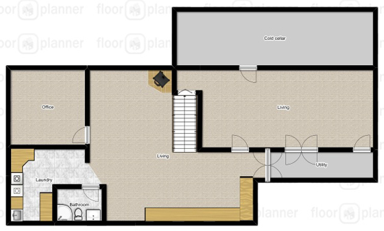
The basement also includes our cold cellar and utility room, but we’re focusing our renovation on the actual living space.
Here’s a floor plan showing how the spaces fit together.

Basement floor plan before (Image courtesy of floorplanner.com)
And here’s the plan showing the changes I’d like to make.

Basement floor plan after. Just subtle changes (except for the aforementioned bathroom). Just moving some things around and dialing up the cozy factor. (Image courtesy of floorplanner.com)
In the end, the main spaces in the basement will be used for TV watching, games and hanging out.
Sarah Richardson is known for putting a full size table in her family rooms as a spot for games, work, crafts or dining.
I think that’s a great idea and we’ve got the space for one, so that’s on the list too.

Inspiration photo from Sarah’s House Season 1.
I’ve already made some fun board game-inspired artwork to go on the walls.
We found a ping pong table top in the barn, so we’ll be making a base for it and bringing it into the basement. There’s a dartboard in the office that we’ll be hanging up somewhere. We’re also storing my brother’s pool table for him and I’ve told him not to be surprised if it ends up in the long room while it’s here.
The basement was Matt’s main priority when we were house-hunting, so I’m excited to make it a nice space that’s special for him.
For more of our inspiration images, visit my Basement board on Pinterest.
And feel free to add your input in the comments. What makes up your perfect basement? Are you a rec room fan or a home theatre enthusiast?

Maybe you should switch the pool table and the ping-pong table. I don’t think your games, work, crafts, and dining table will be useable if we’re playing ping-pong. I signed up on pintrest.
Hmmm… valid point. We’ll have to see how everything fits in. We’re still a little ways from furniture.
wow, what a great huge space! Congratulations on your new farmhouse! It looks like it’s going to be a wonderful project and a wonderful house! And, thank you for the link to floorplanner.com- I’ve had people asking to do one on the barn and this will be great!
all my best,
joan
p.s. the tree is just down the street from us;)
Thanks for the comment, Joan. I’ve been reading for the love of a house for more than a year, and I love what you’ve done with your farmhouse. It’s very inspiring for me!
Is your long room really wide enough for pool? Where’s the piano going?
It looks like it should be to me, but we haven’t measured yet to see. How much space should we have? The piano will likely be staying in there. We’re just not sure exactly where yet.