
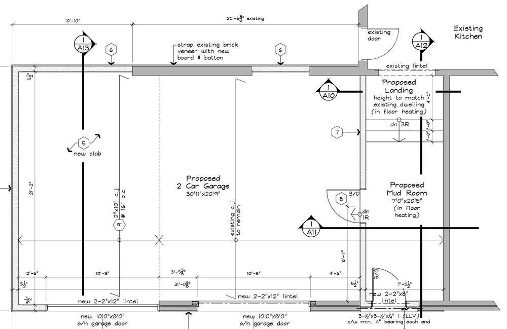
Hello. Happy September. I hope you’ve had a great summer. Our summer has been wonderful and full. I have updates to share. First up is the final part of our garage/mudroom/patio makeover: the driveway. The last step of this project is finally complete. The driveway is paved.
When I started the garage renovation in 2021, I didn’t fully consider how one project leads to another. We had a great garage and mudroom inside the house, but what about the outside? The patio finished off one section and gave us steps to the living room’s sliding glass door and the mudroom entrance. But I really wanted to pave the driveway too.
A long driveway was on my initial wishlist for the farm and I love our gravel laneway with the grassy middle, so there was no way I was touching that. But a bit of asphalt closer to the house accomplished a couple of things for us.
It made plowing and shoveling easier in the winter. Gravel is not fun to shovel, and it’s even less fun to rake out of the grass once all the snow melts.
It gave Ellie a smooth place to play. Scootering, bike riding and chalk drawing all work much better on asphalt than gravel.
It lessens, somewhat, the dirt and detritus that is tracked into the house.
It stabilized the edge of the patio.


So this spring I hired some pavers (Alliance Paving for any locals). They cleaned up the gravel (so many weeds had invaded), mapped out a square driveway (the original had been dug on the fly by a skid steer with very little measurement), graded everything (more gravel on top of the 250 tonnes we added during the garage reno) and laid fresh asphalt.







I decided to pave from the spice garden to the edge of the garage. The corner where the driveway section meets the lane was a logical stopping point.

This gave us plenty of room to pull in and out of the garage. It also gives a long runway for Ellie to ride, run, roll or rain dance.

One lesson learned, we paved when the weather was very hot. We did not drive on the driveway for a full week (longer than our contractors recommended), but the asphalt still wasn’t fully set and we have some scuffs and divots in the surface already. Some are from turning the car wheels as I back out of the garage. A couple are from Ellie’s bikes. They’re minor and I’m not upset about them, but when we pave again, I’m going to wait until fall when the weather is cooler.

The surface of the driveway ended up several inches above the lawn, so our pavers recommended building up the dirt around the edge. Our farmer arranged for a truckload of topsoil (another dump truck, yay), and I spent a few days on the tractor spreading it around. Ellie followed behind with grass seed.



The grass has now sprouted. I added a doorbell (it used to be at the front door, but it kept falling off the stone). And this project–the whole garage/mudroom/patio/driveway renovation that we started 3 years ago–is complete.

(It’s also been the site of a major milestone when Ellie learned to ride her two-wheeler this summer.)


























































